Umbau Attika-WHG in Kreuzlingen

Ausführung 2017

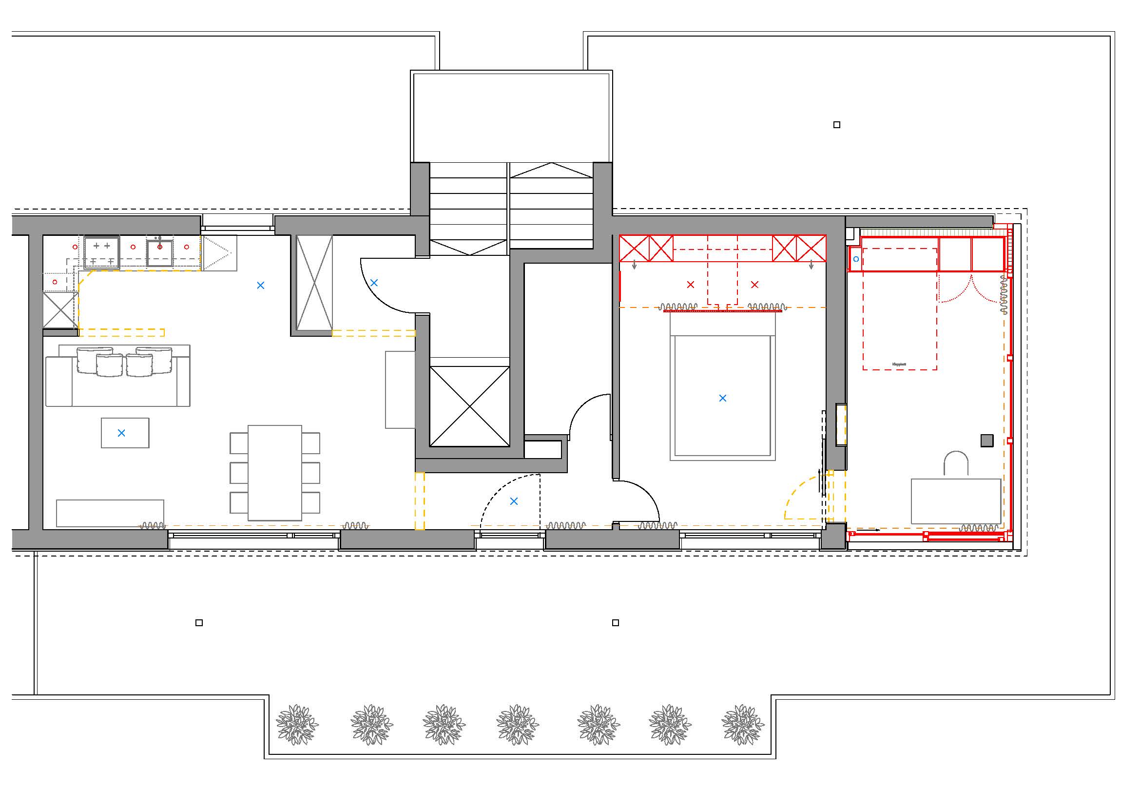
räumliche Erweiterung und Sanierung einer bestehenden Wohnung von 1984.

Räumlich wird die Wohnung um ein Zimmer erweitert, indem der bestehende, überdachte Aussenraum der Terrasse mit einer umlaufenden Verglasung eingefasst wird. Die Erweiterung orientiert sich optisch an dem Bestand.

Durch den Abbruch von Wandstücken wird ein grosszügigeres Wohngefühl erreicht. Sämtliche Oberflächen der Wohnung werden zeitgemäss erneuert. Speziell entwickelte Schreinereinbauten im Schlaf- und Gästebereich sorgen für eine gute Ausnutzung und Flexibilität der Räume.

Projekte
Büro

Meine Tätigkeit betrifft sämtliche Leistungsphasen von Bauaufgaben, der Schwerpunkt liegt in der Umsetzung von vielfältigen Wohnbauten sowie Sanierungen im Bestand.

 

2013 - Bürogründung od-architektur

Fortbildungen im Bereich Bauleitung Hochbau, Baukosten, Immobilienbewertung

2001 bis 2013 - Projektleiter bei Marx Architekten, CH-Mammern

2001 - Diplom Abschluss an der HTWG Konstanz/D

1999 bis 2000 - Mitarbeit bei Prof. Tobias Wulf, Stuttgart/D

1995 - Lehrabschluss Bauzeichner Hochbau bei Gold&Müller, Herrenberg/D

1990 - Schulabschluss Abitur

1971 - Geboren in Herrenberg/D

Kontakt

od-architektur
oliver dengler, Architekt FH
Freiestrasse 8
8280 Kreuzlingen

+41–79–122 20 69

+49–179–677 28 43