Umbau DG Aussiedlerhof in D-Altingen

Ausführung 2013

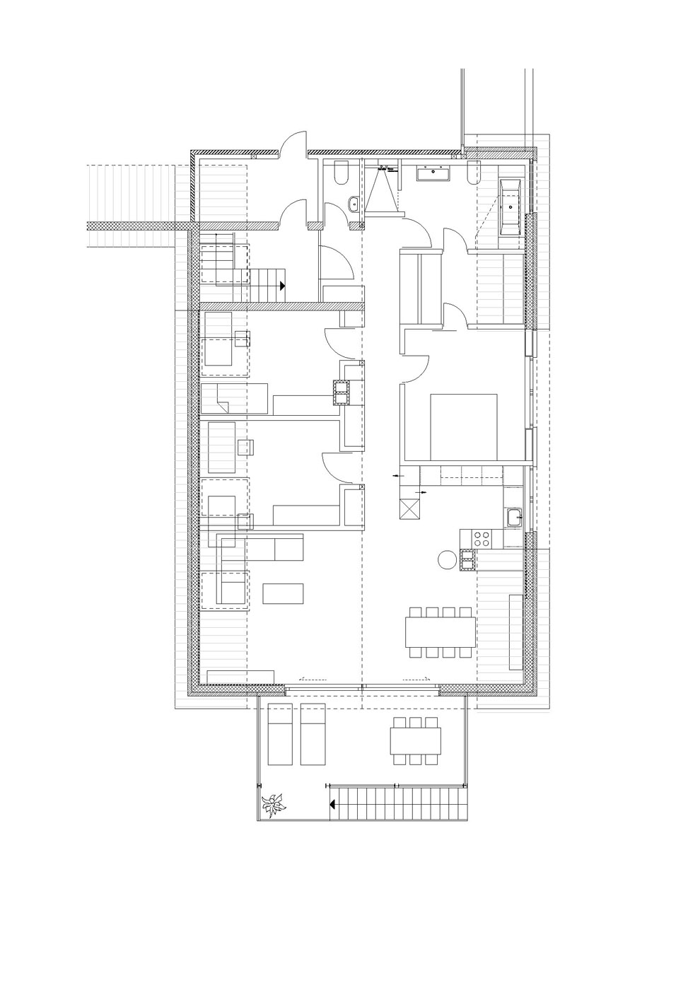
Ein bestehendes, nicht ausgebautes Dachgeschoss im landwirtschaftlichen Aussenbereich wird zu einer Wohnung umgebaut. Eine grosse, neu gesetzte Dachgaube belichtet Elternbereich und Küche. Neue Raumstrukturen werden aus statischen Gründen in Leichtbau geschaffen. Westseitig bietet ein grosszügiger Stahl-Balkon einen unverbauten Ausblick auf die offenen Felder.

Projekte
Büro

Meine Tätigkeit betrifft sämtliche Leistungsphasen von Bauaufgaben, der Schwerpunkt liegt in der Umsetzung von vielfältigen Wohnbauten sowie Sanierungen im Bestand.

 

2013 - Bürogründung od-architektur

Fortbildungen im Bereich Bauleitung Hochbau, Baukosten, Immobilienbewertung

2001 bis 2013 - Projektleiter bei Marx Architekten, CH-Mammern

2001 - Diplom Abschluss an der HTWG Konstanz/D

1999 bis 2000 - Mitarbeit bei Prof. Tobias Wulf, Stuttgart/D

1995 - Lehrabschluss Bauzeichner Hochbau bei Gold&Müller, Herrenberg/D

1990 - Schulabschluss Abitur

1971 - Geboren in Herrenberg/D

Kontakt

od-architektur
oliver dengler, Architekt FH
Freiestrasse 8
8280 Kreuzlingen

+41–79–122 20 69

+49–179–677 28 43