Umbau EFH Stein am Rhein

Ausführung 2016/17

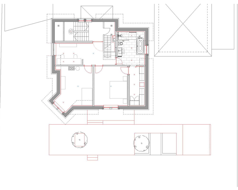
Das Haus aus dem Jahr 1905 wird umfangreich saniert und umgebaut, dabei werden im EG die kleinteiligen Räume zu einem grossen und offenen Wohnraum verbunden. Sämtliche Oberflächen und Einbauten werden erneuert, die Balkendecken werden akustisch neu aufgebaut. Der Gartenbereich wird durch neu erstellte Fenstertüren vom Wohnraum aus erschlossen.

Ein Treppenpodest vermittelt den Höhenversatz von Innen nach Aussen zur grosszügigen Holzterrasse mit überdachtem Unterstand.

Im OG wird das Bad räumlich verlegt und so zu einem neuen Raumkonzept mit Schlafzimmer und Ankleide angepasst. Eine neue Gaube belichtet das neu geschaffene Arbeitszimmer.

Projekte
Büro

Meine Tätigkeit betrifft sämtliche Leistungsphasen von Bauaufgaben, der Schwerpunkt liegt in der Umsetzung von vielfältigen Wohnbauten sowie Sanierungen im Bestand.

 

2013 - Bürogründung od-architektur

Fortbildungen im Bereich Bauleitung Hochbau, Baukosten, Immobilienbewertung

2001 bis 2013 - Projektleiter bei Marx Architekten, CH-Mammern

2001 - Diplom Abschluss an der HTWG Konstanz/D

1999 bis 2000 - Mitarbeit bei Prof. Tobias Wulf, Stuttgart/D

1995 - Lehrabschluss Bauzeichner Hochbau bei Gold&Müller, Herrenberg/D

1990 - Schulabschluss Abitur

1971 - Geboren in Herrenberg/D

Kontakt

od-architektur
oliver dengler, Architekt FH
Freiestrasse 8
8280 Kreuzlingen

+41–79–122 20 69

+49–179–677 28 43